The Sierra
2 Bedroom 2 Bath - 1,365 Sq. Ft.
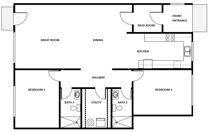
Experience modern living in this beautifully designed 2-bedroom, 2-bath home where clean lines meet elevated comfort. The open floor plan is flooded with natural light thanks to expansive windows and clerestory accents, creating a bright, airy atmosphere throughout. A spacious kitchen with granite countertops and stainless-steel appliances anchors the living space, perfect for entertaining or quiet evenings in. Both bedrooms offer generous proportions and full baths with contemporary finishes.
Home Features
Clean-lined, modern exterior for timeless curb appeal
Flat roof profile with integrated clerestory windows for natural light and privacy
Open-concept floor plan blending living, dining, and kitchen zones
Spacious kitchen with granite countertops and premium stainless-steel appliances
Two generously sized bedrooms with ample space and natural light
Two full bathrooms with contemporary fixtures and an efficient layout
